4280 Red Mountain Road Unit# 423
Bedrooms
1
Bathrooms
2
Home Size
645
sqft.
Lot Size
0
$
Listing by:
Moka Webster
at
Mountain Town Properties Ltd.
Home Video Tour
Property Description
Top-Floor Loft at RED Mountain – Steps from the Slopes! The closest and newest condo development at the base of RED Mountain—your perfect mountain getaway, fully furnished and move-in ready. This modern, top-floor loft unit features soaring 16-foot ceilings and expansive mountain views that elevate the open-concept living space with a true sense of grandeur. Sleeping for six, the unit features 1.5 bathrooms, smart storage solutions, and a spacious second-floor loft that adds both room and style. Right outside your door, enjoy the convenience of a private gear locker—ideal for skis, boards, or bikes. Need more space to relax or entertain? Just steps away, you'll find a shared lounge complete with a fully equipped kitchen, cozy fireplace, games room, and plenty of seating. Amenities don’t stop there—on site you’ll also enjoy: designated heated parking spot, shared bike storage, a BBQ patio with an outdoor dining area, a well-equipped gym, a quiet office space—all with stunning views of RED Mountain. Live, rent, or both. Whether you're looking for a full-time escape or a rental opportunity, this loft offers full flexibility. The winter calendar is wide open, giving you full control over your vacation time and potential income. Quick possession available—just in time for ski season. Don’t wait—secure your spot on the mountain before the snow flies! (id:60292)
KEY INFORMATION
Property Type:
Single Family
Ownership:
Condo/Strata
Built:
2024
Parking:
1
parking spaces
PRACTICALITIES
CONSTRUCTION:
FOUNDATION:
EXTERIOR FINISH:
FLOORING:
APPLIANCES:
Refrigerator, Oven - Electric, Range - Electric, Dishwasher, Washer/Dryer Stack-Up
WATER:
Municipal water
BASEMENT:
ROOF:
Other, Unknown
HEATING TYPES:
Heat Pump, Baseboard heaters
SIZES & DIMENSIONS
HOME SIZE:
645
square feet
LOT SIZE:
0
ABOVE
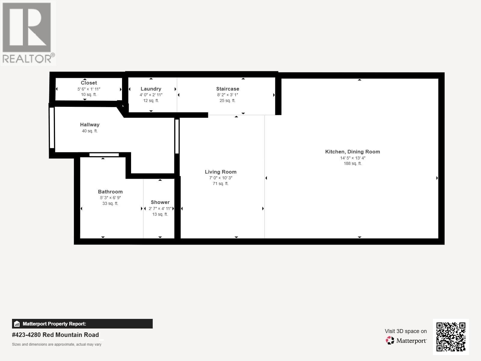
Primary Bedroom 13'3'' x 12'10''
Partial ensuite bathroom 7'9'' x 3'1''
LOWER LEVEL
MAIN LEVEL
Other 2'9'' x 6'0''
Other 3'1'' x 8'2''
Living room 10'3'' x 7'0''
Laundry room 2'11'' x 4'0''
Kitchen 13'4'' x 14'5''
Other 1'11'' x 5'6''
Full bathroom 6'9'' x 5'3''


The trademarks MLS®, Multiple Listing Service® and the associated logos are owned by The Canadian Real Estate Association (CREA) and identify the quality of services provided by real estate professionals who are members of CREA.

Always available to you
Call me at any time with your questions, whether buying, selling, or just exploring for the future.
Contact Luke Now

























