3732 Toba Road Unit# 2
Bedrooms
2
Bathrooms
2
Home Size
1244
sqft.
Lot Size
0
$
Listing by:
Raquel Green
at
Century 21 Assurance Realty Ltd
Home Video Tour
Property Description
Luxury Modern Living Meets Nature! Discover 3 stunning brand-new units to choose from in this beautifully designed modern triplex. Each home offers 2 spacious bedrooms and 2 bathrooms, thoughtfully designed with high-end finishes throughout. The primary suite features a generous walk-in closet, and a stylish ensuite. Enjoy the bright, open concept living space with over height ceilings, recessed lighting, and large windows that fill the home with natural light. Additional highlights include: EV charger, 5 appliances included, electric garage door opener, blinds and window screens, BBQ gas connection, roughed in central vac. Each unit comes with a single car garage plus additional driveway parking. Experience luxury, comfort, and the beauty of nature, all in one exceptional new home! Estimated completion for 2026 (id:60292)
KEY INFORMATION
Property Type:
Single Family
Ownership:
Freehold
Built:
2025
Parking:
2
parking spaces
PRACTICALITIES
CONSTRUCTION:
FOUNDATION:
EXTERIOR FINISH:
FLOORING:
APPLIANCES:
WATER:
Municipal water
BASEMENT:
ROOF:
Asphalt shingle, Unknown
HEATING TYPES:
Forced air, See remarks
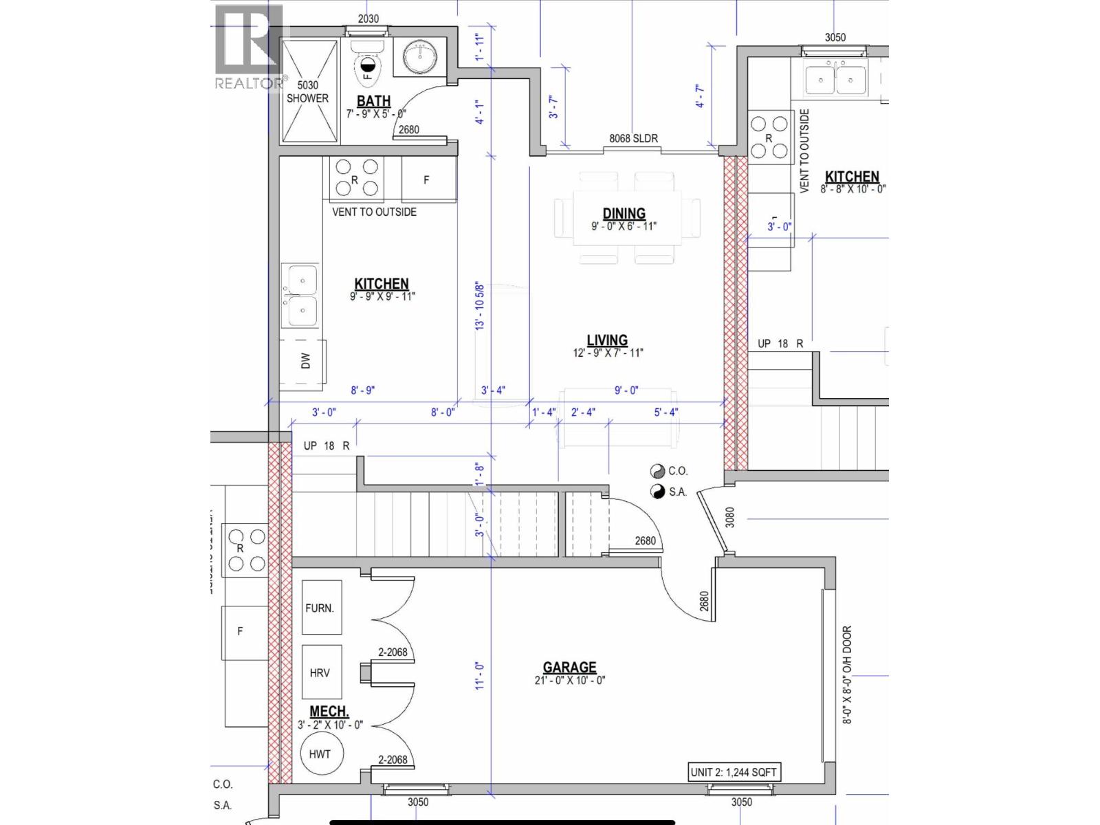
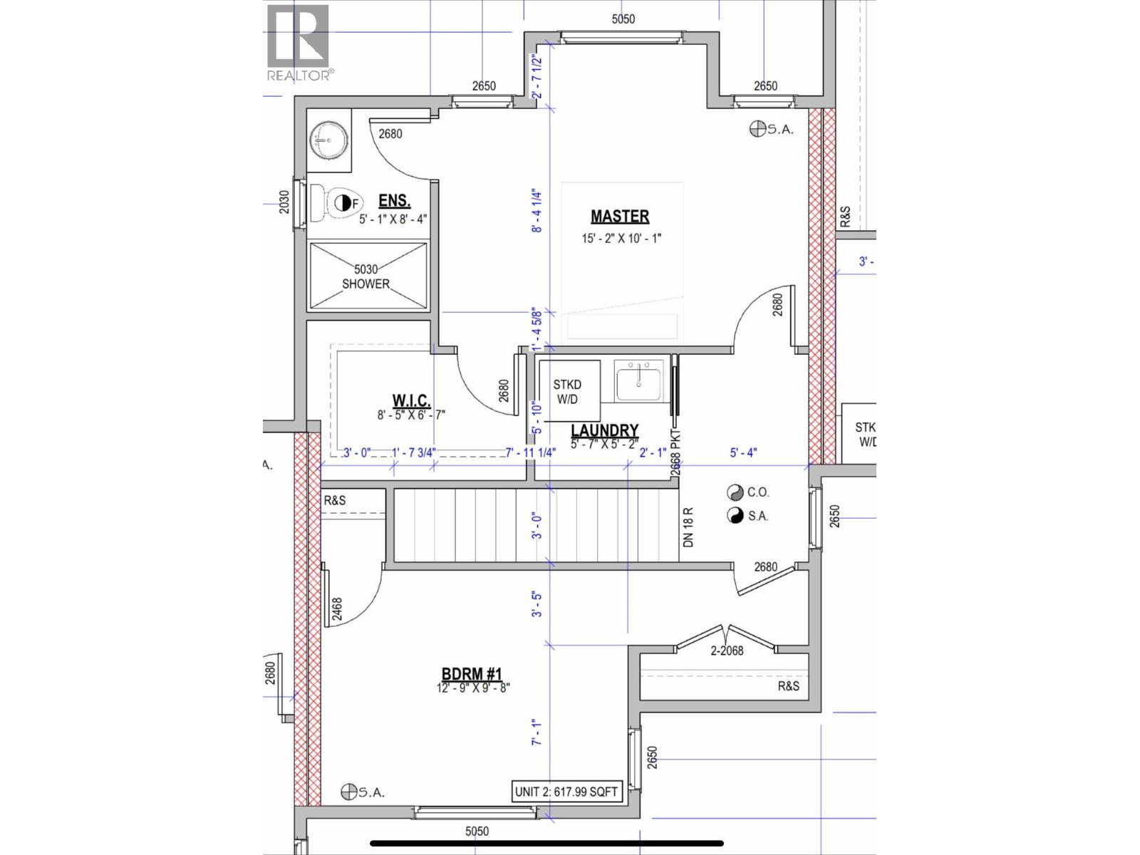
SIZES & DIMENSIONS
HOME SIZE:
1244
square feet
LOT SIZE:
0
ABOVE
4pc Ensuite bath
Bedroom 12'9'' x 9'8''
LOWER LEVEL
MAIN LEVEL
Primary Bedroom 15'2'' x 10'1''
Laundry room 5'7'' x 5'2''
4pc Bathroom
Kitchen 9'11'' x 9'9''
Dining room 9' x 6'11''
Living room 12'9'' x 7'11''


The trademarks MLS®, Multiple Listing Service® and the associated logos are owned by The Canadian Real Estate Association (CREA) and identify the quality of services provided by real estate professionals who are members of CREA.

Always available to you
Call me at any time with your questions, whether buying, selling, or just exploring for the future.
Contact Luke Now










